Skip to content
303-455-7741
|
info@arcwestarchitects.com
Menu
About
Commercial
Industrial
Restaurants & Bars
Breweries & Tap Rooms
Offices & TI
Archived Projects: Commercial
Residential
Additions & Renovations
ADU (Accessory Dwelling Unit)
New Home
Porches and Patios
Archived Projects: Residential
Staff
Blog
Contact
Menu
Commercial - Retail, Restaurant, Office
ArcWest-Architects-Pilothouse-Brewing-exterior2
Continued
ArcWest-Architects-Pilothouse-Brewing-exterior
Continued
ArcWest-Architects-Pilothouse-Brewing-brewery2
Continued
ArcWest-Architects-PilotHouse-Brewing-EQ-Plan
Continued
Pilothouse Brewing logo
Continued
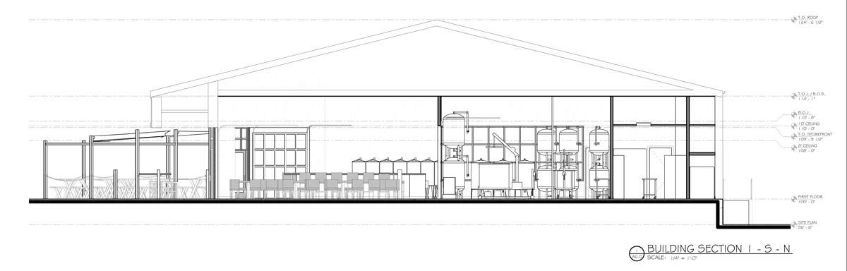
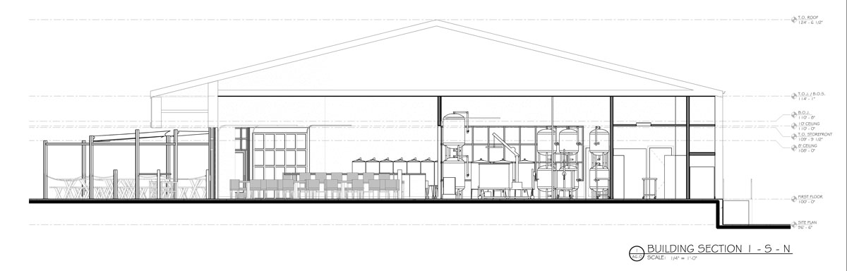
ArcWest-Architects-Pilothouse-Brewing-design-sideview
Continued
ArcWest-Architects-BuffaloRose-Revitalization-front-view-crop
Continued
Buffalo Rose – historical1
Continued
Buffalo Rose – historical3
Continued
Buffalo Rose – historical2
Continued
To top