Skip to content
303-455-7741
|
info@arcwestarchitects.com
Menu
About
Commercial
Industrial
Restaurants & Bars
Breweries & Tap Rooms
Offices & TI
Archived Projects: Commercial
Residential
Additions & Renovations
ADU (Accessory Dwelling Unit)
New Home
Porches and Patios
Archived Projects: Residential
Staff
Blog
Contact
Menu
Commercial - Retail, Restaurant, Office
0904_AZ_Existing Conditions 083
Continued
0904_AZ_Existing Conditions 048
Continued
0904_AZ_Existing Conditions 034-Azteca
Continued
0903_Existing Site 016
Continued
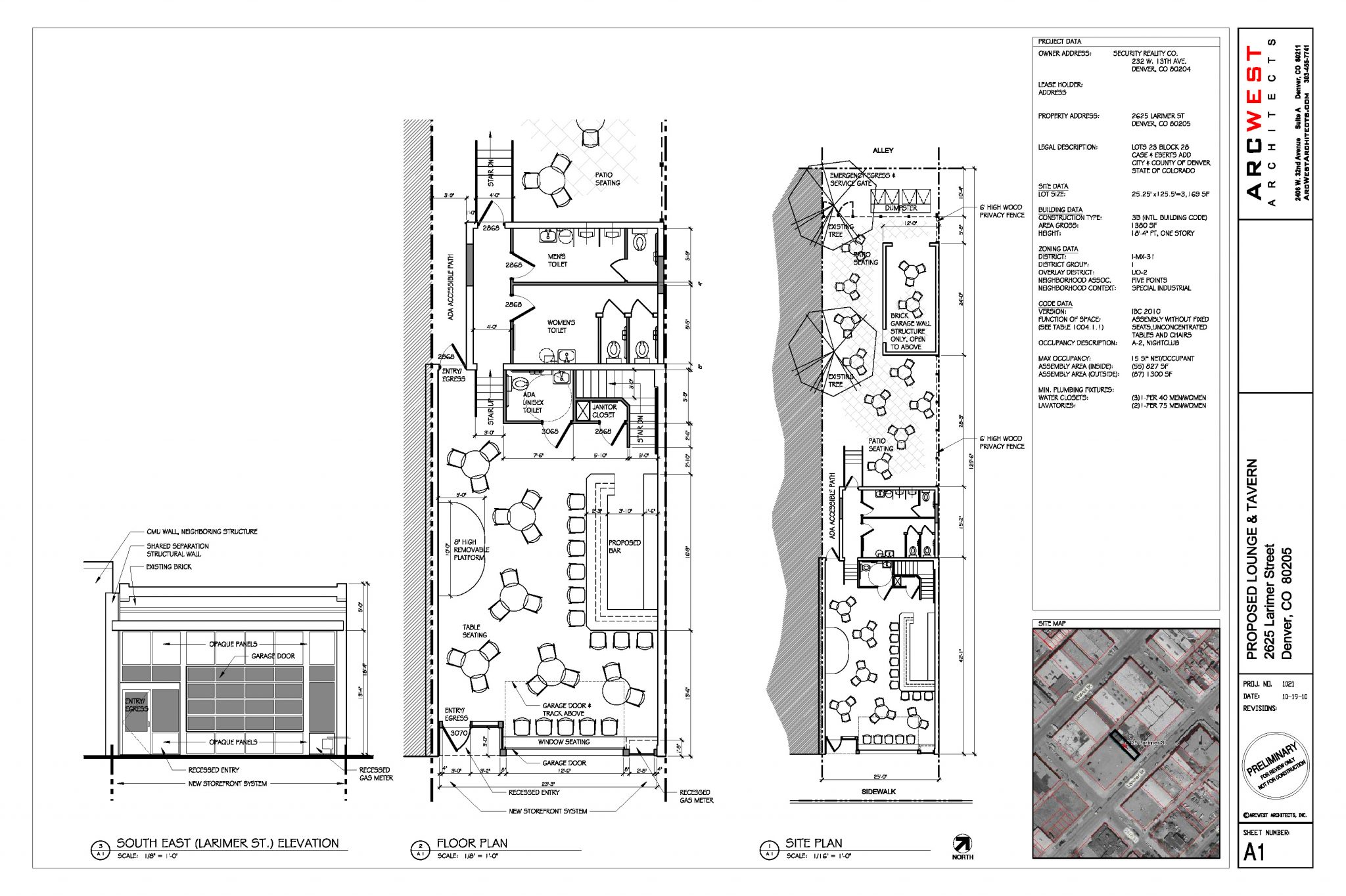
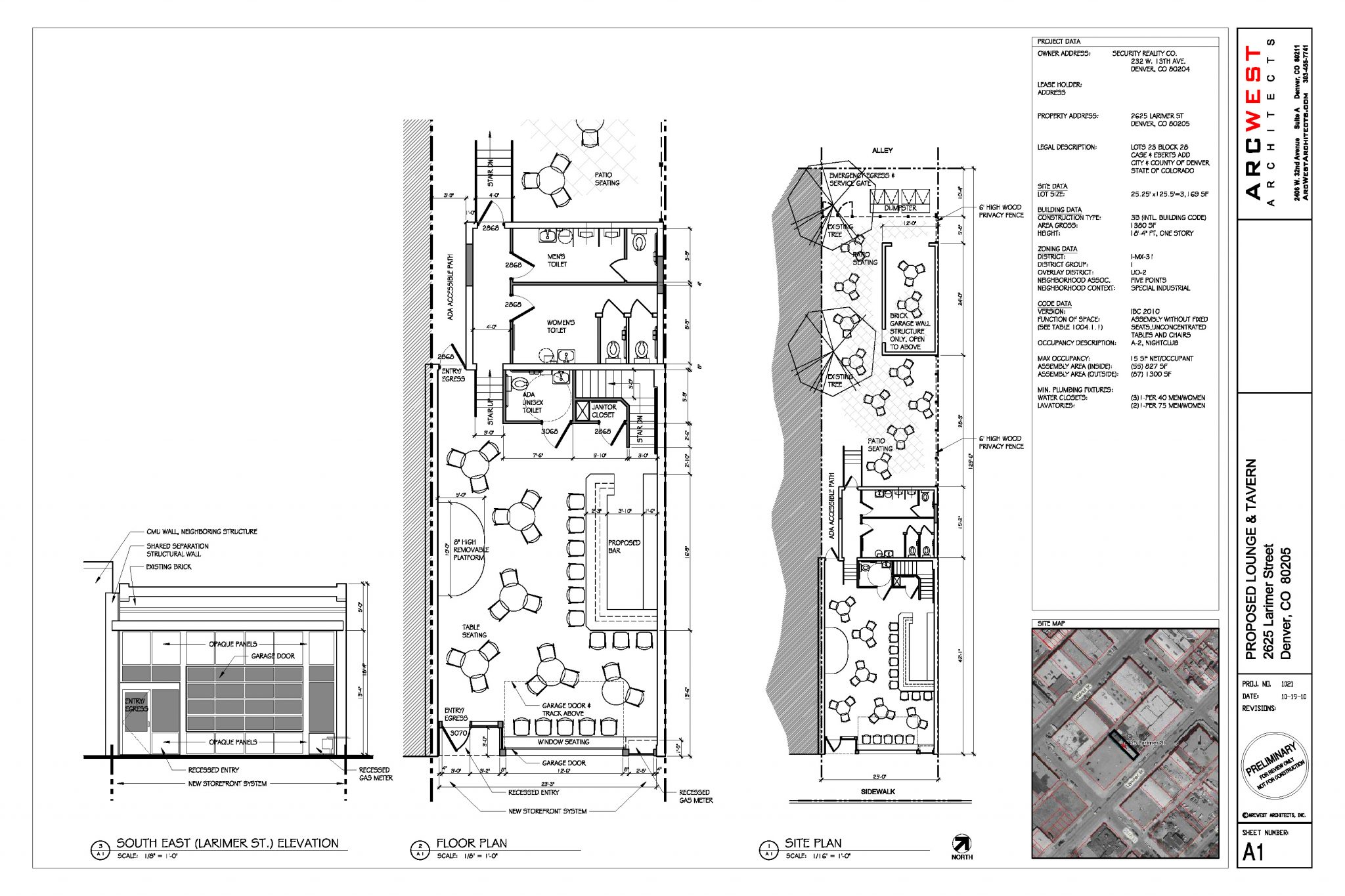
10-27-10_A1_2625 LARIMER-Matchbox
Continued
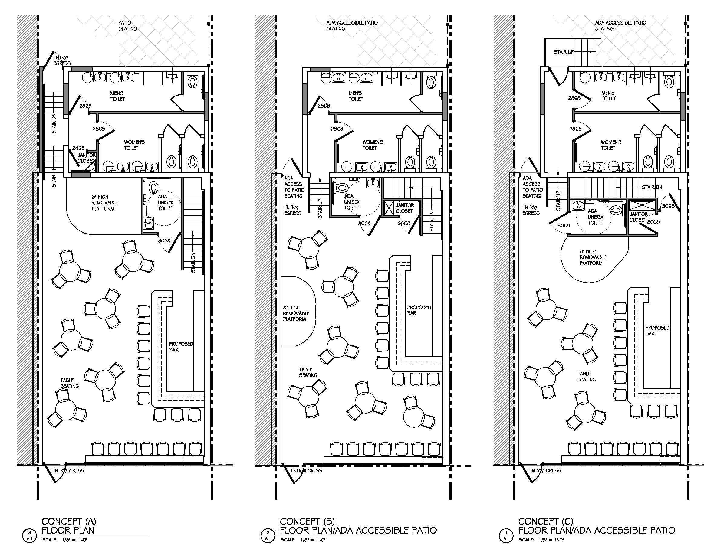
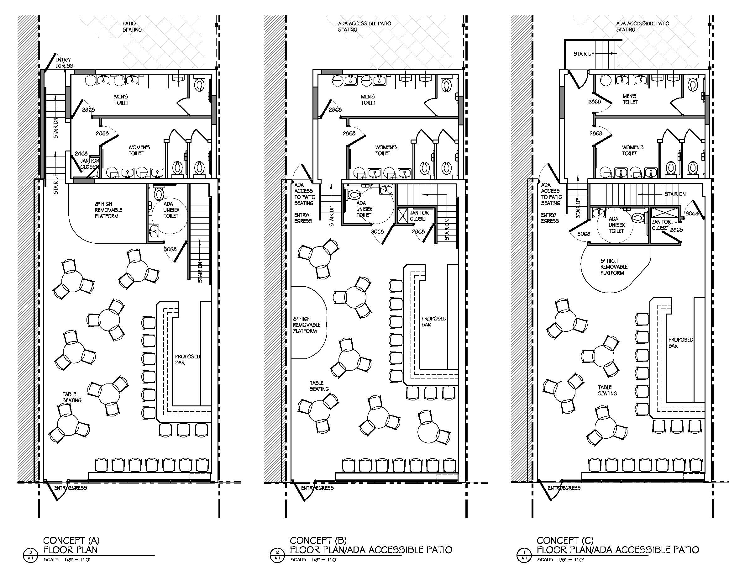
10-26-10_A1_Floor Plans-Matchbox
Continued
DSCN5514-Matchbox
Continued
DSCN5504-Matchbox
Continued
DSCN4846-Matchbox
Continued
DSCN4487-Matchbox
Continued
To top