Skip to content
303-455-7741
|
info@arcwestarchitects.com
Menu
About
Commercial
Industrial
Restaurants & Bars
Breweries & Tap Rooms
Offices & TI
Archived Projects: Commercial
Residential
Additions & Renovations
ADU (Accessory Dwelling Unit)
New Home
Porches and Patios
Archived Projects: Residential
Staff
Blog
Contact
Menu
Commercial - Retail, Restaurant, Office
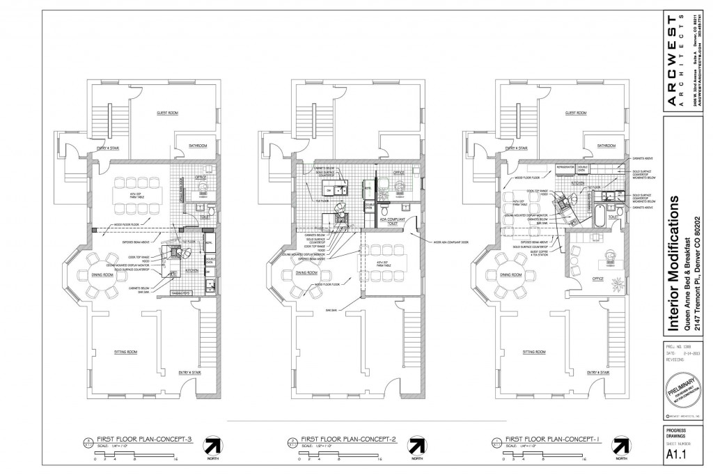
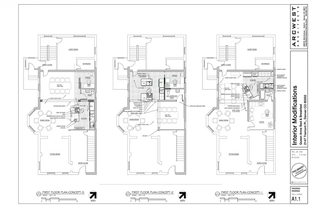
130217_X-Plan-Concepts-1-3-1024×682
Continued
Blog-1-1024×612
Continued
Patzcuaros-Advertisment-737×1024
Continued
Aqua-Interior-1024×791
Continued
130515-Aqua-Spa_Final-Presentation-1024×682
Continued
South_1024-150×150
Continued
North_1024-150×150
Continued
Interior_1024-150×150
Continued
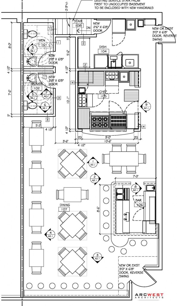
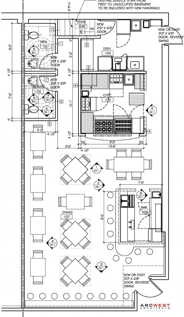
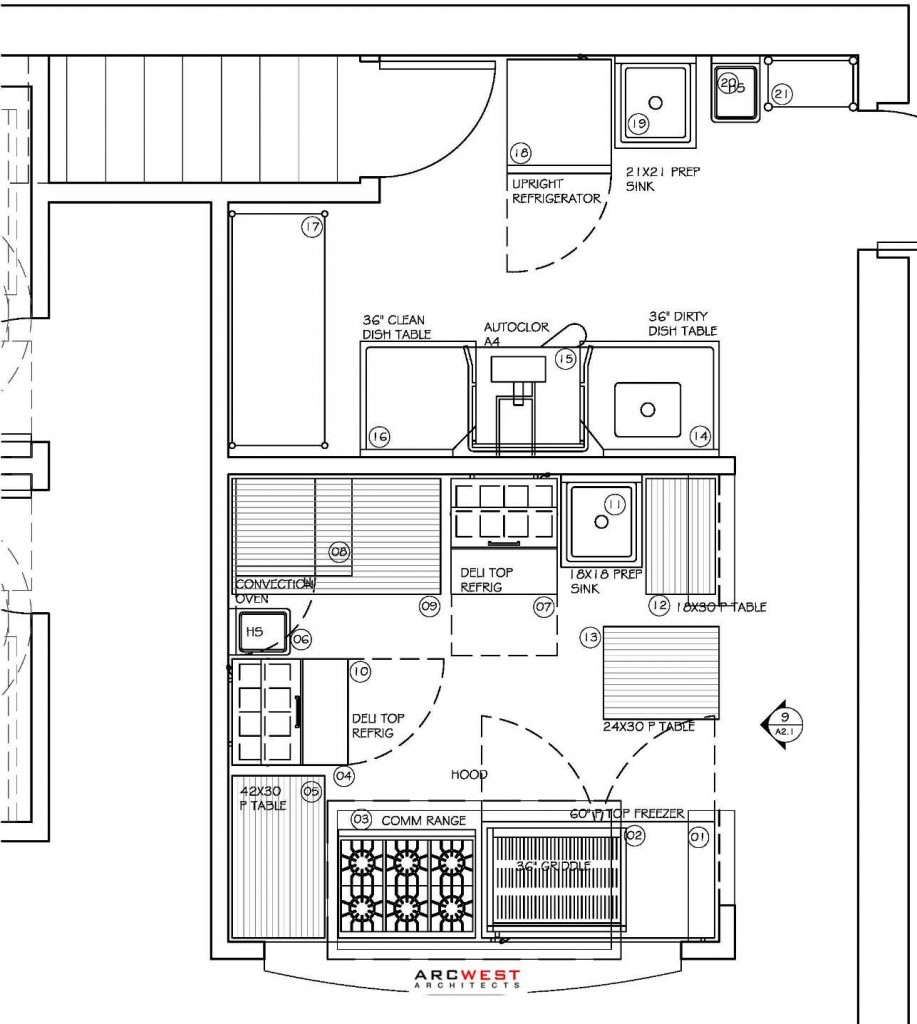
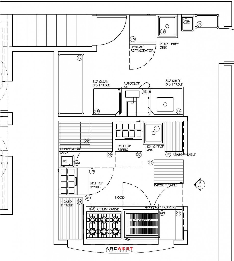
Plimoth_Commercial-Kitchen_Design-by-ArcWest-917×1024
Continued
Plimoth_Restaurant-Design-594×1024
Continued
To top